点击蓝字 关注薛哥,加“星标”,优质资料直达!
前言
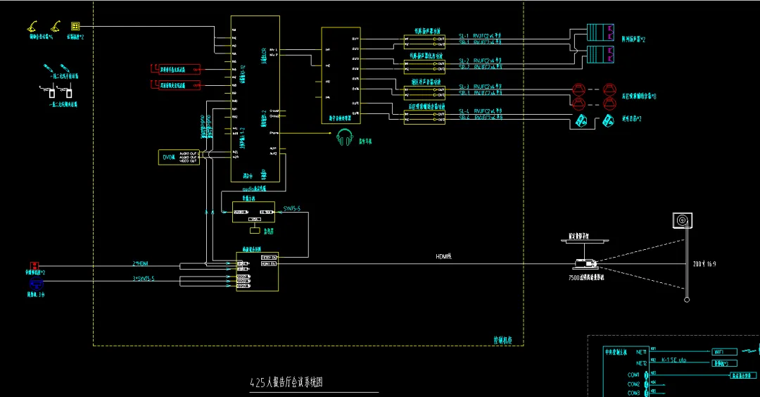
大家好,我是薛哥。我们VIP会员群的读者咨询校园项目的智能化弱电系统设计图纸素材,今天分享一个不错的学校图纸素材,包含系统图及平面图,可以参考一下。每一个项目不一样,设计的系统也会有所区别,不用纠结了最全面最新的,学习别人的设计思路,套用一些成型的模板,比什么都重要。
这套完整的CAD图纸素材,VIP会员有需求的可以直接私信我,下载!
非会员也可以进入我的“知识星球”进行下载,点击扫码进入就可以了。
想要下载弱电精品资料的,可以扫码加入!

正文


















新弱电精品资料
最近发布了2025年上半年(到6月30号)的公众号文章。里面有方案,有图片,基本涵盖了智能化弱电行业的各个系统的文章,而且还送22套精品资料,每一篇都带着题目,方便大家查找相关内容。比如搜索视频监控方面的资料。此资料非常适合新人学习,尤其没有时间、又不知道怎么搜索资料的,全文件共计6700多个,建议弄一套,绝对有帮助!

相关内容可以点击下面的链接查看
加入我们
1
如果您需要2024年的上半年文章,可以查看以下链接:
2
如果您需要2024年的下半年文章,可以查看以下链接:
3
弱电资料免费送,需要的点下面的链接:
VIP会员招募中
弱电成长俱乐部(VIP群)8群正在招募会员,已经有3500名精英加入我们,欢迎弱电工作者加入!现在入群可以获得精品资料,和3500人脉资源。
我们的宗旨就是分享知识,共享资源,合作共赢,共同成长!
具体详情点击下面的链接:

联系方式

如果您在学习弱电行业知识的时遇到问题,不能解决的时候,可以咨询我!我愿意为那些刚入行的人提供一点帮助。欢迎大家加我的QQ号81113907或者微信81113907。


分享、留言与点赞,至少我要拥有一个吧